glisser

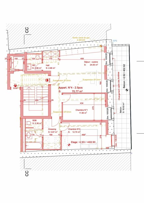
DENGES,nouvelle promotion, appart. 3.5 au 1er étage avec balcon.

dernière mise à jour : calendar

Aperçu de la Propriété

  • ID

    #1635053

  • Type

    flat

  • Pièces

    3.5

  • Bain

    1

  • WC

    1

  • Surface habitable nette

    82 m²

  • Année dernière rénovation

    2025

  • Production chaleur

    pompe à chaleur air-eau

  • Répartition chaleur

    chauffage au sol

  • Condition

    non spécifié

  • Usage

    residential

Caractéristiques & commodités

  • Balcon
  • Calme
  • Parking

Emplacement

Agent